Опора ППд171 деревянная промежуточная переходная одноцепная IEK

Группа:
Типовые решения для деревянных опор

Цена:
0

{{color.label}}:



Артикул: ASIP-DER-OPR-151-00-29

Наименование: Опора ППд171 деревянная промежуточная переходная одноцепная IEK

Вид решения: Деревянная

Группа опоры: Промежуточная

Количество жил ответвления СИП, шт:

Количество цепей: Одноцепная

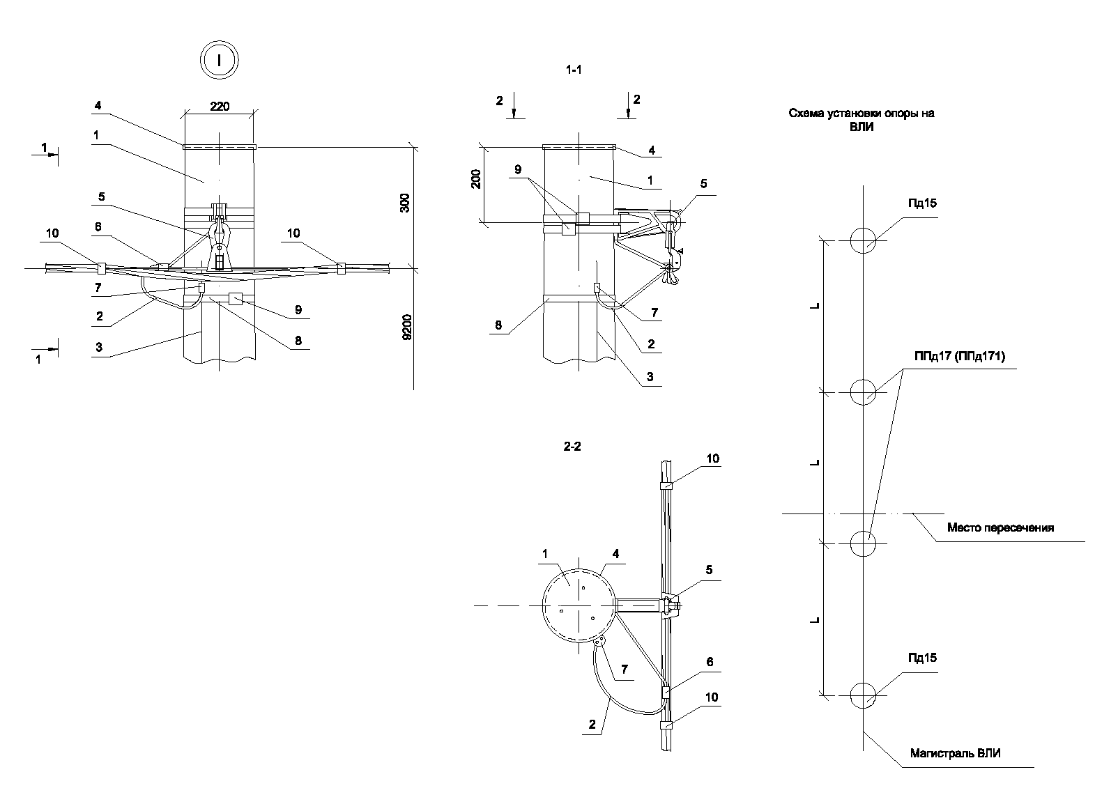
Марка опоры: ППд171

Наименование решения: Опоры

Тип опоры: Переходная

Описание: В составе проекта разработаны деревянные опоры ВЛИ 0,4кВ в соответствии с требованиями ПУЭ 7 издания. Опоры ВЛИ 0,4кВ разработаны на базе деревянных стоек длиной 9,5м, 11м, 12м. Одно и двухцепные опоры могут применяться в I-IV районах по ветру и гололёду. На всех типах опор предусмотрена возможность ответвления к вводам в здания в одну и в две стороны от ВЛ двух, четырех и 2х2 жил СИП. Опора ППд171 устанавливается в случаях, когда требуется выполнять повторные заземления и заземления для защиты от атмосферных перенапряжений.

Преимущества: Соответствие требованиям стандарта СТО ПАО РОССЕТИ. Сотрудничество с ведущими российскими энергетическими компаниями. Возможность внесения изменений в любое решение силами технических специалистов ГК IEK. Короткие сроки поставки компонентов решения обеспечиваются наличием широкой складской и партнёрской сети.

ЦЕНА ПО ЗАПРОСУ

Написать сообщение

Пожалуйста, оцените по 5 бальной шкале
Продолжая использовать наш сайт, вы даете согласие на обработку файлов cookie, пользовательских данных (сведения о местоположении; тип и версия ОС; тип и версия Браузера; тип устройства и разрешение его экрана; источник откуда пришел на сайт пользователь; с какого сайта или по какой рекламе; язык ОС и Браузера; какие страницы открывает и на какие кнопки нажимает пользователь; ip-адрес) в целях функционирования сайта, проведения ретаргетинга и проведения статистических исследований и обзоров. Если вы не хотите, чтобы ваши данные обрабатывались, покиньте сайт.

(требование ФЗ №152. Статья 9 "Согласие субъекта персональных данных на обработку его персональных данных")